Spectacular Mountain Retreat Fully Furnished With Pond Food Plot And Box Blind
Media
Summary
Property
- Type
- Recreational Land, Residential Land, Timberland, Hunting Land
- Road Frontage
- Township Road
- Road Surface
- Gravel
Land Details
- Timber
- Pond
Approximate Distances
| 22.6 mi | to State College |
| 29.6 mi | to Raystown Lake |
| 2.4 mi | to Allensville |
| 9.3 mi | to Belleville |
| 22.7 | to Lewistown |
Features/Improvements
- Small Game
- Big Game
- Predators
- Fish
- Creek/Spring
- Food Plot
- Tree Stands/Blinds
- Water Control Structures
- Trail Network
- Internal Road System
- Gated Entrance
- Seller's Mineral Rights Convey
Description
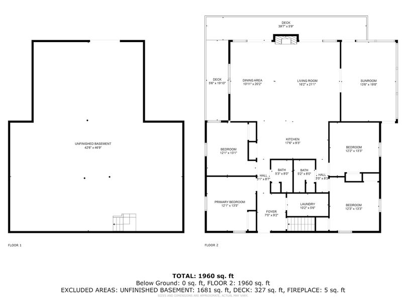
Conveniently located 17 miles off interstate 322, this turnkey 4-bedroom, two-bathroom cabin located just outside Allensville is a true gem that demands your attention. Constructed in 2002 with no expenses spared, this cabin boasts a spacious layout of almost 2,000 square feet. With the capacity to comfortably sleep 12, it's an ideal space for hosting friends and family. The meticulous maintenance & upkeep since its construction ensures a cabin that far exceeds modern standards. Inside, you'll find all the amenities you could desire, including central air, central vacuum system, and a convenient laundry room. The open-concept kitchen area seamlessly connects to the living room and dining area, featuring vaulted ceilings and a charming stone fireplace. Enjoy uninterrupted views of the pond from this area, with two sliding glass doors leading to the large wrap-around deck overlooking the water. A newly finished sunroom provides a delightful space to relish the cool summer breeze. The expansive, heated basement, spanning nearly 1,700 square feet, comes complete with an automatic garage door, making it an ideal spot for your toys. It's spacious enough for a large workshop and additional storage. The property, secured with gated access from Allensville Mountain Rd. Outdoor enthusiasts will appreciate the presence of deer, bear, and turkey sign throughout the property. The forested acreage stands out for its relatively flat terrain—uncommon in the area. A well-maintained internal system make navigating the grounds easy. For hunters, the property is ready for you! A well thought-out food plot and three strategically placed box blinds have the property setup for success. Just minutes away are Rothrock State Forest & SGL #112B, providing additional hunting opportunities. Additionally, an RV hookup is available to accommodate more guests, ensuring that this cabin is not just a home but a retreat that offers both comfort and outdoor adventure.
The information contained herein is deemed reliable but is not warranted or guaranteed by the Broker, its Agents, or the Seller. Access to property, access to utilities, or any measurements including but not limited to, acreage, square footage, frontage, and mapping boundary lines shared herein has not been independently verified and is for purposes of marketing only. If exact measurements, access to property, or access to utilities is a concern, the property should be independently measured or investigated by the prospective buyer.
COOPERATING BROKER COMPENSATION: Please contact Listing Agent/Broker for terms of cooperating Buyer Broker compensation. Terms of compensation, if any, shall be ascertained by cooperating brokers before beginning efforts to accept the offer of cooperation. Buyer’s Agents/Brokers must be identified, by Buyers and/or their Brokers/Agents, on the first contact with Listing Broker/Agents to receive compensation. Otherwise, compensation will be at the sole discretion of the Seller, Broker, and Whitetail Properties Real Estate, LLC.
Real Estate Commissions and Cooperating Broker Compensation, if any, are fully negotiable and is not fixed or controlled by law, by Whitetail Properties Real Estate, LLC (or any division/trade name/DBA of), or its Agents/Brokers.
Sold Property
For more information or to see additional properties currently for sale see Levi Rentzel's listings.